
pasportizace vašich staveb
Profesionální dokumentace a zaměření stávajících staveb.
Zajišťujeme přesnost a soulad s předpisy pro každý projekt ve Zlíně i mimo něj.
Účel dokumentace
Každý vlastník stavby má povinnost uchovávat aktuální dokumentaci svého objektu.Pasport stavby tuto povinnost pomáhá splnit – nahrazuje chybějící nebo neúplné podklady.
Pokud se původní dokumentace nedochovala nebo neodpovídá skutečnému stavu, může stavební úřad vyžádat zpracování pasportu stavby.

Evidence a základní dokumentace stavby
Pasportizace poskytuje přesný přehled o aktuálním stavu objektu.
Slouží jako podklad pro plánování rekonstrukce, přestavby nebo demolice.
Díky přesnému zaměření získáte výkresy, které může projektant přímo použít pro přípravu projektové dokumentace.

Při rekonstrukci nebo změně stavby
Nabízíme kompletní vyřízení dotačního programu pro rodinné domy i velké veřejné stavby ve spolupráci s architekty a energetickými specialisty.
Pasport stavby bývá nezbytným podkladem při vyřizování dotací na zateplení, výměnu oken, modernizaci vytápění či jiné energetické úspory.
Dokumentace slouží k doplnění projektových podkladů a umožňuje energetickému specialistovi zpracovat energetický štítek budovy (PENB).

Dotační programy
(Nová zelená úsporám / Oprav dům po babičce)
Zpracujeme kompletní podklady pro architektonickou a projekční činnost – přesné zaměření objektu, výkresové podklady (půdorysy, řezy, pohledy) a volitelně i 3D model stavby.
Naše dokumentace umožňuje architektům a projektantům ihned navázat prací bez nutnosti dalšího měření.

Pro architekty a projektanty
(podklad pro architektonické soutěže)
Nedávno zpracované projekty
Podívejte se na naši práci – ukázky dokončených pasportů a dokumentací, které jsme připravili pro naše klienty.
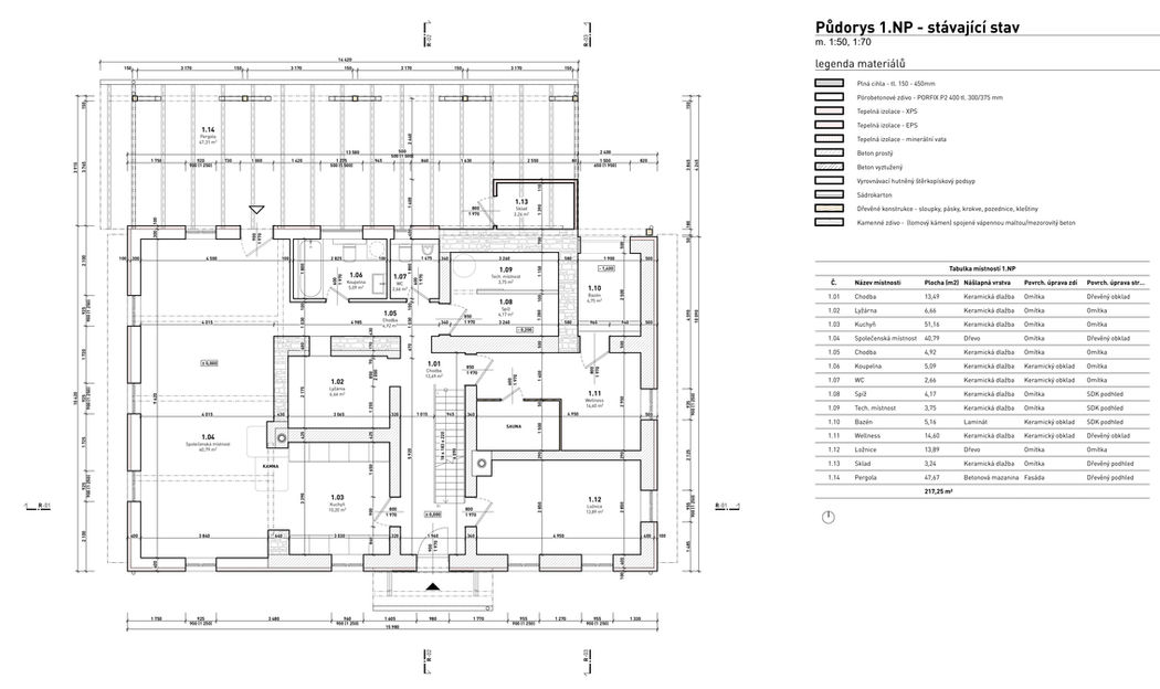
Pasport - Chalupa / Jeseníky
Pasport - 42. budova / Zlín
What Our Clients Say

Elena Kral: 'PASPORT-ZLIN made our renovation process smooth and compliant.'
Client 2
Client 7

James Smith: 'Highly recommend for any legal building documentation needs!'
Client 3
Client 8

Maria Gomez: 'Exceptional quality in surveys, worth every penny.'
Client 4
Client 9

Liam O'Connor: 'Reliable and prompt service, exceeded expectations.'
Client 5
Client 10

Typ pasportu a jeho účel:
-
/ zjednodušený pasport pro stavební úřad
-
/ podklad pro žádost o dotaci
-
/ dokumentace pro architekta nebo projektanta apod.

Dostupné podklady k objektu:
-
/ původní výkresy (v tištěné nebo digitální podobě – kompletní / částečné)
-
/ pokud podklady nemáte - uveďte prosím „bez dokumentace“.

Adresa nebo lokalita objektu
-
/ přesná adresa
-
/ případně i informace o přístupnosti stavby (např. volný vstup, rekreační oblast, apod.).

Další požadované služby
-
/ geodetické zaměření - výškové kóty objektu / pozemek
-
/ 3D model stavby
-
/ energetické hodnocení (PENB)
Jak poptat pasportizaci ?
Pro konzultaci s našimi profesionály stačí několik základních informací o vaší stavbě – o zbytek se postaráme my.
V rámci poptávky pasportu prosím uveďte:















